Exklusiv villa i andalusisk stil, på en stor tomt på 1 248 m², med 436 m² byggd boyta, generösa innerutrymmen, privat trädgård, söderläge, rikligt med naturligt ljus och utsikt över Medelhavet till salu i La Cala del Moral.
hus/villa viktigaste huvuddrag
- Utsikt över bergen
- Havsutsikt
- Trädgård
- Terrass
- Parkering
- Utsikt över staden
- Utsikt
- Tvättstuga
- Panoramautsikt
- Larmsystem
- Interiör
- Grillplats
- Exteriör
- Chill out plats
- Balkong
- Planlösning 435m²
- Konstruerat Område 435m²
- Boende yta 372m²
Vad du behöver veta om det här hus/villa
Lucas Fox presenterar exklusivt denna klassiska villa i andalusisk stil i La Cala del Moral, en av de mest exklusiva enklaverna på Costa del Sol, i provinsen Málaga. Denna rymliga och ljusa villa har ett privilegierat läge vid havet. Den ligger bara fem minuters promenad från stranden, i ett lugnt bostadsområde, inom bekvämt räckhåll från alla bekvämligheter.
Huset ligger på en generös tomt på 1 248 m² och har en byggd yta på 436 m². Det utmärker sig genom sin funktionella planlösning med rymliga rum, sitt söderläge som ger naturligt ljus hela dagen, och sin fria utsikt över Medelhavet från flera rum.
På bottenvåningen finns en imponerande entréhall med högt i tak som leder till ett rymligt och ljust vardagsrum/matsal med direkt tillgång till en elegant veranda i söderläge, perfekt för att njuta av medelhavsklimatet. Det stora, ljusa köket med frukostplats erbjuder många designmöjligheter. Denna våning kompletteras av tre dubbelrum, två badrum och en gästtoalett.
Övre våningen är reserverad för det rymliga och ljusa sovrummet, som har ett eget badrum och en privat terrass med havsutsikt och har ett mångsidigt angränsande rum, perfekt som kontor, omklädningsrum eller relaxavdelning.
Källaren erbjuder en praktisk tvättstuga, ett garage med plats för två fordon och ytterligare utrymme som kan användas som vinkällare, gym, spelrum eller studio.
Trädgården omger huset helt och har ett bakre område fördelat på två nivåer som möjliggör skapandet av olika utomhusmiljöer: chill-out-områden, privata trädgårdar eller till och med en swimmingpool.
En fastighet med karaktär, ljusstyrka och havsutsikt, perfekt för dig som letar efter ett exklusivt och högklassigt hem på en av de bästa platserna på Costa del Sol.
Exklusiv Listing
Fastighet endast tillgänglig med Lucas Fox
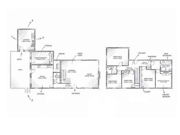
Planlösning
Entréplan
- Mottagare
- Vardagsrum/matsal
- Veranda
- Kök med kontor
- 2 sovrum
- 2 kompletta badrum
- Gästtoalett
Övre våningen
- Sovrum med eget badrum
- Extra sovrum
- Privat terrass
- Angränsande rum (kontor, omklädningsrum eller relaxavdelning)
Källare
- Tvättplats
- Garage för 2 fordon
- Multifunktionellt utrymme (källare, gym, lekrum eller ateljé)
Costa del sol oriental - Axarquia, Costa del Sol: Var den här bostaden är belägen
Denna fastighet ligger i La Cala del Moral, öster om Malaga, i ett väletablerat bostadsområde på Costa del Sol, bara fem minuters promenad från stranden.
Det erbjuder utmärkta förbindelser till Malagas centrum och enkel tillgång till butiker, skolor, restauranger och alla tjänster, vilket gör det till ett privilegierat och lugnt läge nära havet.
Fastighetens energicertifikat
Energy Certificate : In process
- 2
- 3
- 4
- 5
- 6
- 7
- 8
- 9
- 10
- 11
- 12
- 13
- 14
- 15
- 16
- 17
- 18
- 19
- 20
- 21
- 22
- 23
- 24
- 25
- 26
- 27
- 28
- 29
- 30
- 31
- 32
- 33
- 34
- 35
- 36
- 37
- 38
- 39
- 40
- 41
- 42
- 43
- 44
- 45
- 46
Liknande fastigheter till salu i Malaga
Inte exakt vad du letar efter?













































































































































































































































































































































































