Tomt på 250 m² med möjlighet att bygga 340 m² och med en stadsplaneringsstudie till salu i Conde Orgaz.
plot viktigaste huvuddrag
- Trädgård
- Garagem
- Naturligt ljus
- Parkering
- Nybyggd
- Exteriör
- Konstruerat Område 339m²
Vad du behöver veta om det här plot
Lucas Fox presenterar denna tomt till salu i ett utmärkt läge i Madrid, i det exklusiva bostadsområdet Conde Orgaz, i Canillas-distriktet. Området är känt för sitt lugn, närhet till huvudvägar, köpcentra, internationella skolor och utmärkta förbindelser till både stadens centrum och Adolfo Suárez Madrid-Barajas flygplats.
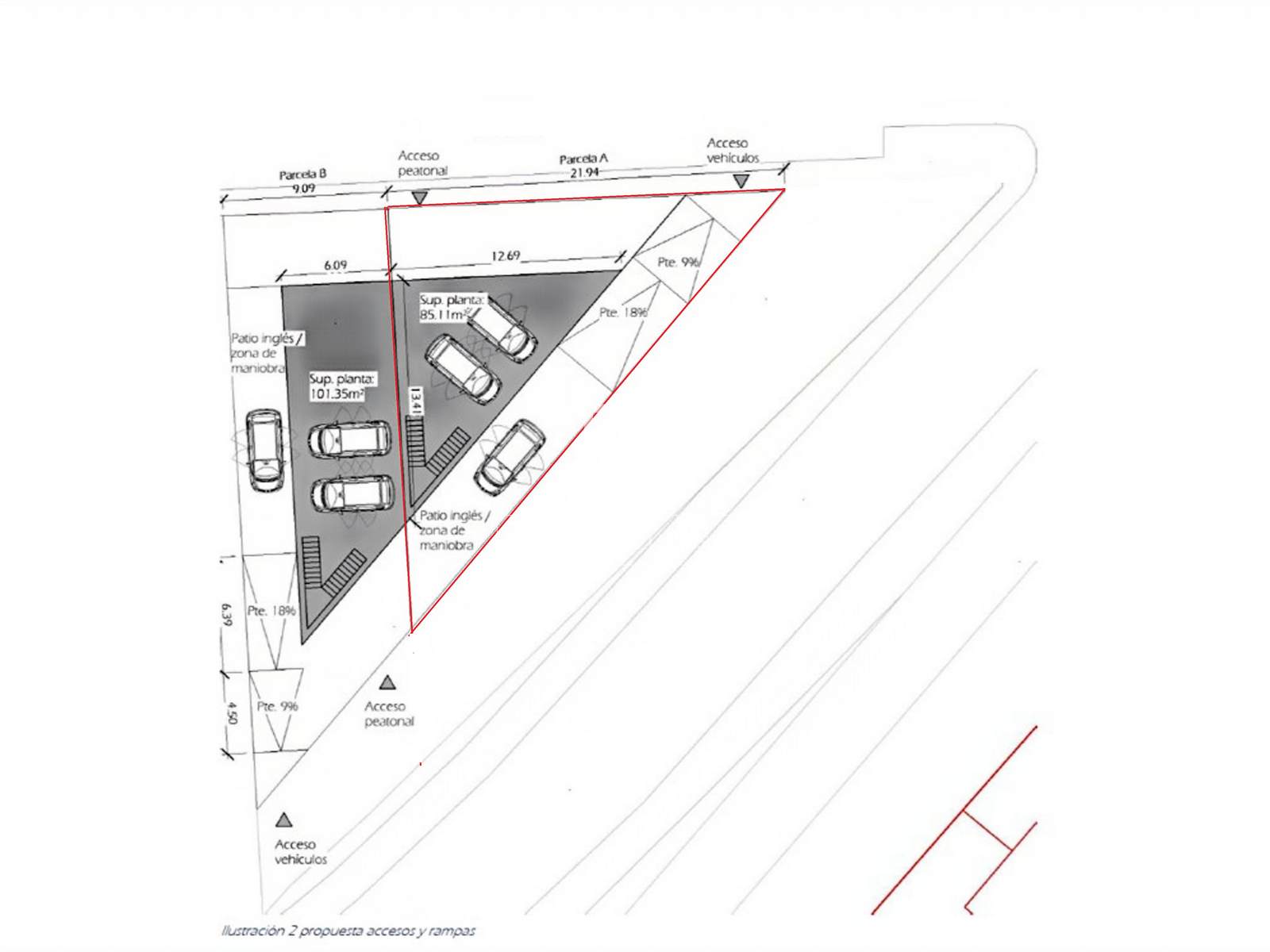
Tomt (A) har en byggbar area på 254,62 m², vilket är ett resultat av avskiljningen av en ursprunglig tomt, och har en maximal byggbar area på 254,62 m² ovan mark, i enlighet med zonstandard 8, klass 4. Reglerna tillåter också byggandet av en källarvåning avsedd för garage och extra användning, vilket höjer den totala ungefärliga byggda arean till 340 m².
En av huvudattraktionerna med denna tomt är dess hörnläge, med dubbel fasad mot två gator, vilket garanterar utmärkt naturligt ljusinsläpp och optimal korsventilation. Dess geometri möjliggör utveckling av ett exklusivt parhus med privat trädgård och separat gång- och fordonsinfart.
Den nuvarande förordningen tillåter byggnation av tre våningar ovan mark plus en källare, vilket gynnar en modern och funktionell design. Dessutom uppmuntrar stadsplaneringsreglerna skapandet av anlagda öppna ytor och införandet av hållbarhetskriterier, såsom gröna tak, vegetationsbaserade skuggningslösningar och förnybara energisystem, vilket förbättrar termisk komfort och energieffektivitet i hemmet.
Reglerna kräver naturligt ljus och ventilation i alla beboeliga rum, vilket gynnar användningen av stora fönster och arkitektoniska lösningar som syftar till att maximera insläppet av naturligt ljus.
En exceptionell möjlighet för utvecklare, investerare eller familjer som vill utveckla ett exklusivt modernt hem i ett av Madrids mest etablerade och eftertraktade bostadsområden.
Kontakta oss för mer information.
Extras
- Tomt lämplig för byggnation av ett parhus i Conde Orgaz – Canillas (Madrid), enligt zonförordning 8 klass 4 i den allmänna stadsutvecklingsplanen från 1997 (PGOUM), ändrad år 2025.
- Byggbar tomtarea 254,62 m² och maximal byggbar area ovan mark 254,62 m².
- Total uppskattad byggd area på cirka 340 m², inklusive en icke-beräknbar källarvåning avsedd för garage och service.
- Hörntomt med dubbel fasad och utmärkt naturligt ljus och korsventilation.
- Minst 2 parkeringsplatser planeras i källaren.
- Privat trädgård med gröna tak, skugga från växter och förnybara energisystem.
Planlösning
Källarnivå
Garage med plats för två fordon
Förråd och teknikrum
Möjlighet till kompletterande användning (gym, spelrum, vinkällare), i enlighet med föreskrifter
Bottenvåning
Rymligt vardagsrum/matsal med direkt tillgång till trädgården
Rymligt kök med tillgång till uteplatser
Gästtoalett
Kontor eller gästrum
Övre våningar
Master bedroom-svit med eget badrum och omklädningsrum
Ytterligare sovrum utomhus
Kompletta badrum
Cirkulationsutrymmen som uppfyller föreskrivna höjder och mått
Conde de Orgaz och Piovera, Madrid: Var den här bostaden är belägen
Tomten ligger i det etablerade bostadsområdet Canillas, i nordöstra Madrid. Den har fasader på två gator, vid en korsning som bildar en lugn och stabil stadsmiljö.
Det har goda förbindelser till flera huvudvägar, shoppingområden och närliggande tjänster, vilket underlättar åtkomst till stadens centrum och Adolfo Suárez Madrid-Barajas flygplats. Dess närhet till motorvägar och kollektivtrafik gör det till ett strategiskt läge för invånare och investerare.
Fastighetens energicertifikat
Energy Certificate : In process
Liknande fastigheter till salu i Madrid Stad
Inte exakt vad du letar efter?











